Arquitecto.eco

5 trucos para aumentar el valor de tu propiedad con una reforma

aumento-de-valor-rentas

5 trucos para aumentar el valor de tu propiedad con una reforma

En los tiempos que corren (da igual cuando leas esto), mejorar una vivienda para venderla o disfrutarla siempre es un acierto. Como expertos en el sector de la construcción, una reforma bien planificada puede aumentar de forma considerable el valor de tu propiedad. No se trata solo de darle un lavado de cara, sino de invertir en mejoras que realmente marquen la diferencia. ¡Te las contamos!

arquitecto en murcia

Mejora la eficiencia energética

Los compradores cada vez están mejor informados y valoran más que una vivienda sea eficiente, ya que esto se traduce en un ahorro a largo plazo en las facturas de luz, agua y gas.

Una de las actualizaciones más recomendadas es invertir en el aislamiento térmico de paredes y techos, para evitar que el calor se escape en invierno y mantener una temperatura confortable en verano, sin necesidad de usar de manera excesiva la calefacción o el aire acondicionado. Siguiendo en esta línea, si instalas sistemas de climatización eficientes, como bombas de calor o suelo radiante ya son un plusazo.  

Otro aspecto que ayuda a nuestro bolsillo a final de mes son las ventanas. Cambiarlas por las que tienen doble o triple cristal mejora el confort en el interior de la vivienda, a nivel de temperatura y ruido. 

Algo que se está llevando mucho y que tiende al alza son las energías renovables. También en casa, ya que cada vez más familias están instalando placas solares en sus tejados. Y ya si instalas una batería, no solo producirías energía eléctrica sino que también podrías almacenarla y utilizarla de noche. Una buena forma de no ser tan dependientes de los combustibles fósiles y de ayudar al planeta. 

Incorporar domótica también supone un notable en mejorar la eficiencia energética. Por ejemplo, los termostatos inteligentes mantienen una temperatura constante de forma eficiente; la iluminación y las persianas automatizadas son muy cómodas y, además, puedes programarlas para que se adapten a las condiciones climáticas de cada momento.  

Por último, optimizar la iluminación con bombillas LED de bajo consumo y mejorar la ventilación (natural o mecánica) no solo creará ambientes acogedores, sino que también ayudará a mantener el confort en el interior del hogar con un consumo de energía muy bajo. 

En otras palabras, lo que no se ve importa y mucho, ya que mejorar la calificación energética de tu casa supondrá una revalorización considerable de la misma.

Crea espacios cómodos y funcionales

Convierte una bodega en una sala de ocio, un ático en un estudio, derriba paredes, une la cocina y el salón… En definitiva, crea ambientes más amplios y modernos. Nuestra generación prefiere los espacios abiertos y luminosos a las habitaciones pequeñas y oscuras. Por eso, si tienes estancias sin ventanas, nuestro consejo es que tires los muros. 

La cocina es una de las zonas de la casa que más se utilizan y donde más tiempo solemos pasar. Escoger materiales naturales como el granito o el cuarzo en las encimeras le dará un toque sofisticado, pintar los azulejos existentes, cambiar los muebles o actualizar los electrodomésticos son algunas ideas para renovar este valioso espacio. Deja de darle vueltas a este tema y descubre 7 ideas creativas para reformar una cocina

Con los baños, pasa otro tanto de lo mismo. Modernizarlo supone un gran retorno de la inversión. Si quieres profundizar en ello, hace unos meses te contamos cómo convertir tu baño en un templo. 

También es una gran ventaja incluir almacenamiento de forma inteligente para aprovechar bien cada metro cuadrado, por ejemplo, los armarios empotrados o los muebles a medida son una buena opción aunque resulten un poco más costosos.

arquitecto en murcia

Los acabados deben ser atractivos y de calidad

Aunque mejorar la eficiencia energética y lo funcional de una vivienda la revaloriza años luz, si no entra por los ojos se acabó el asunto. 

Por ejemplo, los suelos de madera o los porcelánicos aportan elegancia y son resistentes; los revestimientos de piedra o microcemento ofrecen acabados modernos y fáciles de mantener; o la pintura ecológica mejora la calidad del aire interior al estar libre de tóxicos. 

Estas opciones no solo mejoran la estética de tu propiedad, sino que también aumentan su valor en el mercado.

No te olvides de los exteriores

Esto es como barrer y echar el polvo debajo del sofá. Si tu vivienda tiene una terraza, patio o jardín, dales atención y cuidado. 

Puedes incorporar zonas de sombra con pérgolas o toldos, plantar especies adaptadas al clima para que sea fácil y barato mantenerlas o incluir una zona de barbacoa y un espacio de ocio cerrado con una buena iluminación, puede hacer que tu vivienda sea más atractiva para el entretenimiento y la vida al aire libre tanto de día como de noche. Aquí te contamos 6 ideas económicas para decorar tu terraza o jardín

Haz que tu hogar sea inclusivo

Una vivienda accesible es aquella en la que cualquier persona puede vivir sin grandes esfuerzos, sin importar su edad o su condición física. Y esto, a la hora de comprar una vivienda, es un requisito muy importante, ya que los seres humanos pensamos mucho en nuestras necesidades presentes y futuras. 

Por ello, si reformas tu casa y tienes en cuenta este aspecto, sumarás más puntos que aquellos que no leyeron cómo adaptar su casa

Resumiendo, aumentar el valor de tu propiedad conlleva cambios funcionales y estéticos. Modernizar tu vivienda significa hacerla más confortable, eficiente, práctica y bonita. Si estás pensando en reformar tu casa en Murcia o Alicante para que tu inversión marque la diferencia, solicita presupuesto sin compromiso

arquitecto en murcia

¿Hay que cambiar el tejado? Señales de que tu cubierta ya no aguanta más

cambio cubierta
Cambio cubierta

¿Hay que cambiar el tejado? Señales de que tu cubierta ya no aguanta más

El tejado es, literalmente, el «techo» de tu casa. Parece obvio, pero a menudo nos olvidamos de que una cubierta en mal estado es la puerta de entrada para goteras, humedad, frío o calor extremos. Y, como suele pasar en las casas antiguas de zonas como Murcia o Alicante, muchos tejados llevan décadas sin un repaso.

No hace falta que llueva dentro para que el tejado esté fallando. A veces los síntomas son más sutiles; una habitación que siempre está helada en invierno, una humedad que vuelve aunque la pintes, o incluso tejas o partes de ellas que acaban en el suelo después de una racha de viento. 

Si algo de esto te suena, sigue leyendo, porque puede que haya llegado el momento de actuar.

¿Por qué es tan importante revisar el tejado de una casa antigua?

Hay algunas señales universales para saber si el tejado de tu casa necesita atención: 

1. Hay goteras cuando llueve

Empezamos por lo más evidente. Si en cuanto caen cuatro gotas empiezas a sacar los cubos, no hay duda, tu tejado tiene una filtración

 

Las goteras no siempre aparecen justo bajo el agujero, a veces el agua se cuela por un punto, se desplaza por la pendiente y acaba saliendo por otro sitio. Por eso no basta con «parchear» el punto húmedo del techo, hay que investigar bien de dónde viene el problema.

 

En casas antiguas de Alicante, por ejemplo, tras un episodio de lluvia intensa como una DANA, es muy común que aparezcan filtraciones si la cubierta no está bien impermeabilizada, hay tejas desplazadas, ojito con las cumbreras !!.

 

De todas formas, no hace falta vivir tan in extremis y esperar a que el agua caiga dentro de casa para darle un cariño a la cubierta de nuestro hogar. 

2. Hay tejas sueltas o desplazadas

¿Has notado que cada vez que hace viento, alguna teja termina en el jardín del vecino? Si empiezan a moverse o a caerse, es señal de que el tejado está perdiendo su función protectora. Además de ser un riesgo evidente, una teja mal colocada deja paso libre al agua, al frío… Y a los problemas. 

 

También es síntoma de tejas desplazadas o partidas si cuando hace viento llegas a oír un pequeño silbido intermitente que no sabes muy bien si es producto de tu imaginación o que alguien te esta criticando.

 

Desde la calle o desde un patio puedes echar un vistazo y ver si hay zonas con huecos, tejas rotas o mal alineadas. Si no estás seguro, es mejor que consultes con un especialista.

3. Hay humedades persistentes en techos o paredes

Hay humedades que suben desde el suelo (por capilaridad) y otras que bajan desde el tejado. Las que aparecen en el techo o en las partes altas de las paredes suelen tener que ver con problemas en la cubierta.

 

En estas zonas, la impermeabilización juega un papel clave. Si el tejado ha perdido su lámina impermeable, o simplemente nunca la tuvo (algo muy habitual en cubiertas antiguas), el agua empieza a filtrarse poco a poco, dejando manchas oscuras, moho e incluso olores desagradables.

4. ¿Cuánto hace que no saneas las cumbreras o encuentros del tejado con las paredes del vecino?

Quizás ni te has parado a pensar que igual que se le cambia el aceite al coche cada 10.000 km o se le pasa la ITV una vez al año, al tejado de nuestra vivienda tenemos que hacerle algo similar.

 

Uno de los puntos más débiles de nuestra cubierta son las cumbreras y los encuentros con las paredes de los edificios de los vecinos. Estos encuentros suelen proteger los finales y principios de nuestro tejado, se identifican por tener piezas especiales que »cubren» estos encuentros, pues bien, esto hay que juntearlo cada 4 ó 5 años aunque aparentemente no tenga falta, toma ya!, si hay alguien que haga esto le hacemos una estatua en mi pueblo. 

5. Sensación térmica extrema: hace mucho frío en invierno y demasiado calor en verano

Si tu casa es un horno en julio y una nevera en enero, probablemente el tejado no está aislando nada. 

 

Un tejado sin aislamiento térmico deja escapar todo el calor en invierno y permite que pase en verano. Y por mucho que pongas la estufa o el aire acondicionado, la sensación térmica no mejora.

6.  La estructura suena, se mueve o está visiblemente dañada

En casas antiguas, muchas cubiertas se construyeron con estructura de madera. Y aunque es un material precioso y muy resistente, con el tiempo puede verse afectado por la humedad, insectos o simplemente el paso de los años.

 

Si oyes crujidos extraños, ves alguna viga que parece torcida o notas que el techo está hundido en alguna zona, conviene hacer una revisión técnica lo antes posible

 

Una estructura débil no solo es un problema térmico o estético, puede poner en riesgo la seguridad de la vivienda y sus habitantes.

cambio de cubierta

¿Reparar o cambiar el tejado completo? Veamos qué opción te compensa

Cuando detectas un problema en el tejado, lo primero que te preguntas es si vale con reparar la parte dañada o tienes que cambiarlo todo. Y la respuesta, como tantas veces en arquitectura, es depende. 

 

Depende del estado general de la cubierta, de cuántas zonas están afectadas y de si hay daños más allá de lo que se ve a simple vista. Le gusta mucho la madera a la carcoma. 

¿Cuándo basta con una reparación puntual?

Si hablamos de un tejado relativamente reciente y el problema está muy localizado (una teja rota, una pequeña filtración, una grieta en la impermeabilización), lo más sensato puede ser hacer una intervención puntual.

 

Reemplazar tejas sueltas, revisar juntas o impermeabilizar puede solucionar el problema sin tener que levantar todo el tejado.

 

Ahora bien, una advertencia importante, a veces lo que parece pequeño es solo la punta del iceberg. En cubiertas viejas, lo habitual es que los daños estén más extendidos de lo que pensamos. Por eso, antes de decidir, hay que hacer una inspección técnica, revisar la estructura, los signos de xilófagos, comprobar el aislamiento y ver cómo está el conjunto.

¿Y cuándo conviene cambiar el tejado completo?

Si la cubierta tiene más de 30-40 años, nunca se ha rehabilitado y ya ha dado señales claras de deterioro (filtraciones recurrentes, paso de frío o calor al interior de la vivienda, tejas en mal estado…), lo más probable es que una reforma parcial sea pan para hoy y hambre para mañana.

 

En estos casos, cambiar el tejado completo te permite empezar de cero y hacerlo bien. ¿El resultado? Una buena estructura con aislamiento térmico y acústico, impermeabilizado correctamente y una cubierta bien acabada y ventilada. 

 

Es una inversión, sí, pero también un alivio. Te olvidas de problemas durante muchos años y mejoras la eficiencia energética de la casa.

cambio cubierta

¿Es obligatorio pedir licencia para cambiar el tejado?

Sí, y esto es algo que mucha gente no sabe. Cambiar el tejado no es una obra menor, aunque desde fuera pueda parecer solo «quitar unas tejas y poner otras». En la mayoría de los casos se considera una obra mayor, sobre todo si se va a modificar la estructura, mejorar el aislamiento o cambiar el aspecto exterior de la cubierta.

 

Por eso, si vas a sustituirla entera o realizar una intervención importante, necesitarás una licencia de obra del ayuntamiento. Además, es necesario contar con un proyecto técnico firmado por un arquitecto .

 

En rehabilitaciones integrales (que es donde más sentido tiene renovar completamente la cubierta), gestionamos todos estos trámites por ti, para que no tengas que preocuparte de licencias, tasas ni papeleos.

¿Y si solo reparo una parte?

Si la actuación es muy puntual, como cambiar unas pocas tejas o arreglar una pequeña gotera, a veces basta con una comunicación previa de obra o incluso puede no hacer falta pedir permiso (aunque depende mucho del ayuntamiento). Lo recomendable es consultar antes con un técnico, para evitar sustos o multas por hacer obras sin licencia.

¿Cuánto cuesta cambiar el tejado de una casa antigua?

No hay una cifra mágica, porque cada tejado es un mundo, pero sí podemos contarte qué factores hacen que el presupuesto suba o baje.

Por ejemplo, no es lo mismo intervenir en un tejado de 40 m² en una casa entre medianeras que en uno de 200 m² en un chalet aislado. Tampoco cuesta igual si hay que cambiar solo las tejas o hay que levantar toda la estructura y rehacerla de cero. El paso hacia ella también importa, si la cubierta es de difícil acceso o hacen falta andamios, el coste sube.

Otro aspecto clave es el tipo de materiales usados. Hay cubiertas más tradicionales (teja cerámica) y otras más técnicas (paneles sándwich, placas metálicas, acabados verdes…), cada una con su propio rango de precio. 

Y por supuesto, si decides mejorar el aislamiento térmico y la impermeabilización, la inversión será mayor… Pero también el confort y el ahorro a largo plazo.

Entonces… ¿por dónde empezar?

Si estás notando síntomas como goteras, humedad, frío extremo en invierno o calor sofocante en verano, es buen momento para revisar cómo está tu cubierta.

 

En Arquitecto.eco podemos ayudarte a valorar si tu tejado necesita una intervención parcial o completa. Hacemos una primera visita, revisamos el estado actual y te proponemos la mejor solución en base a tus necesidades, el tipo de casa y tu presupuesto.

 

A veces no hace falta cambiarlo entero, pero en otras, una rehabilitación integral es lo más sensato para ahorrar tiempo, dinero y problemas a medio plazo.

El impacto del clima mediterráneo en la construcción y reformas en Alicante

reformar una casa vieja

El impacto del clima mediterráneo en la construcción y reformas en Alicante

La región de Alicante está marcada por un clima mediterráneo caracterizado por temperaturas elevadas, escasas lluvias y una alta exposición al sol. Estas condiciones influyen directamente en la forma en que se diseñan, construyen y reforman las viviendas. Es esencial entender cómo adaptarse al entorno para garantizar eficiencia, confort y durabilidad en las construcciones. ¡Te contamos cómo! 

¿Cómo influye el clima mediterráneo en la construcción y reformas en Alicante?

Los veranos calurosos y los inviernos suaves demandan una planificación cuidadosa en cuanto a los materiales y las técnicas de construcción. Las decisiones que se tomen desde el inicio de un proyecto, ya sea obra nueva o reforma, impactan directamente en la sostenibilidad y la eficiencia energética de la vivienda.

Materiales adecuados para soportar el calor y la humedad

El clima mediterráneo exige la utilización de materiales que ayuden a mitigar los efectos del calor y la humedad. El uso de elementos como la piedra natural, el hormigón y las cerámicas es muy común, dada la disponibilidad que tenemos de ellos en esta zona, pero no son los más adecuados porque retienen mucho calor y nos lo van soltando poco a poco durante la noche (inercia térmica). 

Los revestimientos de madera tratada o fibras naturales pueden ser una opción estética y funcional, siempre teniendo en cuenta su resistencia a la humedad y el sol, estos materiales se pueden disponer en doble capa en la configuración de una fachada ventilada, donde podemos disponer de un material tipo Trespa o Alucobon en la parte exterior, los cuales ofrecen mucha resistencia al sol y aguantan bien el paso el tiempo.

Otro tema importante a tener en cuenta es el aislamiento térmico. Aunque pueda parecer que el aislamiento es más relevante para zonas frías, en realidad también es imprescindible para evitar el sobrecalentamiento en verano y mantener el confort durante todo el año, lo que mejora considerablemente la eficiencia energética del hogar sin importar la estación. 

Los sistemas de aislamiento en cubiertas y fachadas, junto con ventanas de doble acristalamiento con cámara, son fundamentales para mejorar la eficiencia energética de las viviendas. Además, el uso de técnicas como los techos verdes, que proporcionan una capa adicional de aislamiento, está ganando popularidad en las reformas.

Técnicas de construcción adaptadas al clima

Una técnica esencial para la arquitectura mediterránea es la ventilación cruzada, que ayuda a maximizar el flujo de aire fresco y reduce la dependencia del aire acondicionado. 

Fachada ventilada, siempre que se pueda, es la mejor solución para este tipo de climas, ahora, es de las más caras.

Las pérgolas o sistemas de sombra en terrazas y patios también pueden ser una solución eficaz para reducir la exposición directa al sol y proteger tanto a las personas como a los muebles exteriores.

A pesar de que Alicante y la región de Murcia tienen un clima predominantemente seco, las lluvias torrenciales pueden ser frecuentes en primavera, el final de verano y en otoño. Estas lluvias, aunque esporádicas, pueden causar daños significativos en edificios si no se toman las medidas adecuadas, no debemos escasear los sumideros y el diámetro de las tuberías de evacuación. 

Por ello, es esencial que las reformas incluyan sistemas de drenaje eficientes, canalones de gran capacidad y cubiertas con pendiente suficiente para evitar la acumulación de agua. Las impermeabilizaciones y soluciones para el control de la humedad en sótanos y plantas bajas también son cruciales para prevenir filtraciones.

El diseño bioclimático en las reformas

El diseño bioclimático es otra tendencia importante en la región de Alicante. Este enfoque prioriza el aprovechamiento de los recursos naturales como la luz solar y el viento, reduciendo la dependencia de sistemas artificiales para climatización. 

Estas viviendas se orientan estratégicamente para maximizar la luz natural en invierno y minimizar el sobrecalentamiento en verano. 

El estándar Passivhaus en el clima mediterráneo

La arquitectura Passivhaus está ganando popularidad en climas mediterráneos. Este estándar se enfoca en la eficiencia energética extrema, a través de un excelente aislamiento, ventanas de alta calidad y sistemas de ventilación con recuperación de calor. En regiones como Alicante, la adaptación de estos principios implica optimizar la protección solar y la ventilación pasiva para aprovechar el clima durante gran parte del año.

La importancia de los sistemas mecánicos, como los recuperadores de calor, cobra especial relevancia en este tipo de construcciones, ya que permiten ventilar los espacios sin perder energía. 

Existen otros tipos de estándares o certificados de construcción eficiente como son el Brean (RU), Leed (EEUU) o Verde (España).

Actualmente, tras la ultima actualización del Código Técnico de la Edificación, únicamente cumpliendo la normativa vigente CTE-DB-HE nos quedamos con índices muy cercanos a estos estándares (superándolos en muchos aspectos) sin que se nos vaya la cabeza en la inversión a realizar. 
 

En conclusión, el clima mediterráneo presenta desafíos para la construcción y las reformas, pero con la elección correcta de materiales, técnicas y diseño, es posible crear espacios confortables, eficientes y estéticamente agradables. Planificar con un enfoque adaptado al entorno natural es clave para maximizar el bienestar y la sostenibilidad en las viviendas y oficinas de Alicante.

¿Buscas un arquitecto especializado en rehabilitación y reformas en Alicante? 

reformar una casa vieja

7 ideas creativas para reformar tu cocina en Alicante: ¿por qué no considerar una rehabilitación integral?

7 ideas creativas para reformar tu cocina en Alicante: ¿por qué no considerar una rehabilitación integral?

Reformar la cocina puede transformar tu hogar, haciendo que sea más funcional y agradable. En Alicante, donde el clima y el estilo de vida mediterráneo influyen en las preferencias de diseño y en la elección de los materiales, una reforma bien pensada puede mejorar no solo la cocina, sino todo tu hogar. 

En este artículo, veremos algunas ideas innovadoras para reformar tu cocina (¡más allá de hacer un único espacio de salón-comedor!) y te mostraremos por qué considerar una rehabilitación integral de tu casa puede ser una excelente opción. ¡Vamos allá!

1. Aprovecha al máximo el espacio con almacenaje inteligente en una cocina pequeña

Una cocina pequeña o con distribución antigua puede beneficiarse enormemente de soluciones de almacenamiento inteligentes. 

Considera instalar estanterías flotantes, armarios con puertas correderas o cajones ocultos. Las soluciones verticales, como las columnas de almacenamiento, también pueden maximizar el uso del espacio sin necesidad de expandir la cocina. 

Además, los muebles multifuncionales, como las islas con almacenamiento integrado, son ideales para añadir espacio adicional sin sacrificar la funcionalidad.

2. Moderniza con electrodomésticos de última generación

Incorporar electrodomésticos modernos puede darle un aire fresco a tu cocina. 

Opta por aparatos que ofrecen una alta eficiencia energética y funciones inteligentes. En Alicante, donde el calor es intenso, una buena opción es instalar una campana extractora de alta potencia y una placa de inducción que facilite la cocción rápida y limpia. Los electrodomésticos integrados también aportan un aspecto más uniforme y elegante.

3. Diseña con colores claros y materiales naturales

Los colores claros y los materiales naturales son perfectos para crear una cocina que refleje el estilo mediterráneo. 

Utiliza tonos blancos, grises o beige para los armarios y encimeras, combinados con materiales como la madera o el mármol para darle calidez y textura. Los acabados naturales no solo son estéticamente agradables, sino que también ayudan a mantener la cocina fresca y luminosa durante los meses más calurosos de la región alicantina.

4. ¿Cómo integrar un comedor en la cocina sin juntar espacios? Agrega una zona de comedor cómoda y agradable

Aunque juntar el salón y la cocina puede ser una opción popular, también hay otras formas de integrar una zona de comedor en la cocina. 

Considera añadir una mesa pequeña con sillas en una esquina o una barra de desayuno junto a la encimera. Estas opciones permiten disfrutar de comidas familiares sin necesidad de un gran cambio. Además, una zona de comedor bien ubicada puede convertirse en el corazón de la cocina, facilitando las reuniones familiares y la socialización.

En este artículo te contamos cómo diseñar una cocina de forma inteligente.

5. Incorpora soluciones de iluminación efectivas

La iluminación adecuada puede transformar el ambiente de tu cocina. Combina luces empotradas en el techo con tiras LED bajo los armarios y lámparas colgantes sobre las áreas de trabajo. 

En Alicante, donde la mayor parte del año tenemos cielos despejados, aprovechar al máximo la luz natural puede hacer que tu cocina se sienta aún más amplia y acogedora. Y si te preocupan tus vecinos, considera añadir persianas o cortinas ligeras para mantener la privacidad sin bloquear la luz.

6. Renueva los suelos con materiales duraderos y estéticos

El suelo de la cocina es crucial para la durabilidad y el estilo. Los azulejos de cerámica o porcelana son opciones populares, pero también puedes optar por materiales modernos como el vinilo de lujo o los suelos de resina. 

Estos materiales son resistentes a la humedad y fáciles de mantener, lo cual es ideal para el uso intensivo que tiene una cocina. Además, puedes elegir colores y patrones que complementen el resto del diseño y crear una apariencia armoniosa en toda la estancia.

7. Considera una rehabilitación integral: más allá de la cocina

Si bien reformar la cocina es un gran comienzo, ¿por qué no aprovechar la oportunidad para hacer una rehabilitación integral de tu casa

Una reforma completa puede abordar aspectos como la distribución general, el aislamiento y la eficiencia energética, lo que resulta en una mejora significativa en la comodidad y el valor de tu hogar. 

En Alicante, una rehabilitación o reforma integral no solo puede hacer que tu hogar sea más funcional, sino que también te permitirá adaptarlo mejor a tu estilo de vida y a las condiciones climáticas locales.

arquitecto en murcia

Con estas ideas puedes renovar tu cocina de una forma efectiva, y al considerar una rehabilitación integral, te aseguras que tu hogar estará perfectamente adaptado a tus necesidades y al clima local. 

Si estás listo para dar el siguiente paso e ir a por una reforma más amplia, no dudes en contactarnos y solicitar un presupuesto sin compromiso

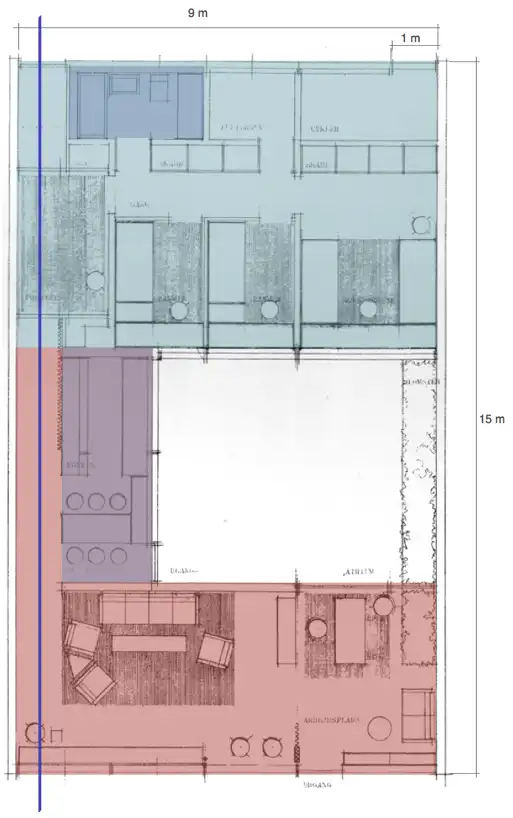
Las casas patio: un tesoro de la arquitectura mediterránea en Murcia

Las casas patio: un tesoro de la arquitectura mediterránea en Murcia

Las casas patio son un elemento icónico que ha dejado un marcado legado en la cultura murciana y alicantina. Estas viviendas tradicionales y mediterráneas se caracterizan por un diseño centrado en torno a un patio interior, que se convierte en el corazón de la casa y en un espacio de encuentro social y familiar, dos características intrínsecas a la cultura mediterránea. 

Este estilo de arquitectura ha dejado una huella profunda en el paisaje urbano, representado por una estética alegre y adaptada al clima, lo que hace que a día de hoy se utilice en las reformas y rehabilitaciones de viviendas

CASA PATIO Arne Jacobsen 2

Cómo son las casas patio murcianas

El diseño y distribución de estas construcciones, como su propio nombre indica, centralizan y destacan un patio, el cual está rodeado por las diferentes estancias de la vivienda, en forma de L o U. Suelen ser espacios al aire libre, con plantas y una zona destinada al descanso o comedor. 

Por sus características, aportan mucha luz natural y una buena ventilación al hogar. Además, es una zona ideal para compartir con la familia y amigos gracias a su intimidad, tranquilidad y confort. 

La arquitectura mediterránea en general destaca por el uso de materiales naturales y locales, como la piedra, el ladrillo y la madera, los cuales aportan un aspecto tradicional y rústico. Los tonos suelen ser cálidos y terrosos, predominando los blancos y ocres que reflejan la luz solar y ayudan a mantener el aire fresco. Por ello, es importante destacar, que además del componente estético, este estilo está adaptado al clima de esta región geográfica, muy soleada, húmeda y calurosa. 

En concreto, Murcia alberga una rica herencia de arquitectura mediterránea, desde iglesias y catedrales, hasta casas señoriales. El estilo y distribución de estas viviendas ha contribuido en la identidad cultural de esta región, facilitando la interacción social, la preparación y la importancia de la gastronomía mediterránea, la celebración de festividades y eventos, etc.

Cómo son las casas patio murcianas

Los materiales utilizados en la arquitectura mediterránea tienen propiedades aislantes que ayudan a mantener el interior fresco durante los meses calurosos y retener el calor en invierno. Son muy comunes los voladizos, las persianas y las lamas, los cuales brindan sombra y protección contra la radiación solar directa, evitando el sobrecalentamiento de los espacios interiores.  

La disposición abierta de los espacios en las casas patio favorece la creación de corrientes de aire y ventilación cruzada, lo que ayuda a mantener una temperatura fresca en el interior, especialmente en los calurosos meses de verano y reduce la necesidad de utilizar sistemas artificiales de enfriamiento. 

Otro punto a favor, es la vegetación y la sombra con la que cuentan estos patios, haciéndolos los lugares idóneos para resguardarnos del sol en las horas centrales del día, sin renunciar a la interacción social. 

Las casas patio son parte del patrimonio arquitectónico y cultural de Murcia. Estas viviendas representan una forma de vida tradicional y reflejan la identidad de la región. Preservar y restaurar estas casas es fundamental para mantener viva la historia y el legado arquitectónico de la ciudad.  

Además, pueden ser renovadas y adaptadas a las necesidades contemporáneas. La integración de sistemas de climatización eficientes, la incorporación de tecnologías sostenibles y la reconfiguración de espacios interiores pueden ayudar a mantener la esencia de las casas patio, al tiempo que se mejora su funcionalidad y confort, sin renunciar a su carácter tradicional. 

En Arquitecto.eco somos especialistas en reformar y rehabilitar casas y edificios antiguos. ¿Necesitas una mano? Solicita presupuesto sin compromiso

Te interesa saber…

En este blog de la profesora de proyecto de la universidad de Valencia (Débora Domingo) , podrás profundizar un poco más sobre las casas patio.

¿Cómo mejorar la eficiencia energética de tu casa en Murcia?

¿Cómo mejorar la eficiencia energética de tu casa en Murcia?

ahorrar en la factura de la luz

Desde 2018, los precios de la energía se han triplicado y con ello, la factura de la luz y gas de la población española. Esto, sumado a que la mayor parte del parque de viviendas en nuestro país fue construido antes de 1970, cuando la legislación en eficiencia energética era muy poco exigente, tenemos como resultado un gasto exagerado en energía doméstica consecuencia de los edificios ineficaces desde el punto de vista energético.  

Por esta razón, tomar consciencia de la importancia de rehabilitar o construir una vivienda siguiendo criterios de diseño pasivo y bioclimático, supondrá un ahorro en energía y dinero en la economía familiar durante los próximos años.

Comprar o reformar una casa es una de las decisiones a largo plazo más importantes en la vida de una persona y, es por ello, que tiene sentido tomarla teniendo en cuenta tanto el coste inicial de la vivienda como los gastos indirectos derivados de ella en el futuro. 

En este artículo te contamos algunas claves de las casas eficientes y cómo reducir el consumo energético innecesario. 

 Mejorar el aislamiento térmico

El aislamiento de cualquier vivienda es crucial para mantener una temperatura interior agradable durante todo el año sin necesidad de disparar el consumo energético. En invierno permite que la calefacción no se escape y en verano evita que la vivienda se convierta en un pequeño asador. Esto significa un menor uso del aire acondicionado y un ahorro en la factura de la luz. De hecho, se calcula que cerca del 65 % de la energía de un hogar se pierde por no estar aislada correctamente. 

Se debe tener en cuenta el aislamiento en paredes, suelos, ventanas y puertas, que son las principales vías de salida del calor. Sin embargo, el mayor ahorro energético se consigue aislando fachada y cubierta y es una actuación que se amortiza en pocos años sin necesidad de mantenimiento. 

Un buen aislante debe tener una alta resistencia térmica para proteger del frío y del calor, ser resistente al ruido y tener un buen comportamiento frente el fuego, para mejorar la seguridad de la vivienda. 

Revisa las ventanas y puertas

Si no se encuentran selladas correctamente o son antiguas, las ventanas y puertas representan un gran agujero en el mantenimiento del calor en el hogar. Por ello, se pueden sellar con burletes o bien reemplazarlas por otros modelos más eficientes desde el punto de vista energético. 

Actualiza electrodomésticos, equipos e iluminación

Escoger electrodomésticos con una calificación energética alta A o B (verde) significa que son eficientes en el consumo de energía y que a medio-largo plazo supondrán un gran ahorro. Piensa en el frigorífico, televisor o una pantalla si está encendida varias horas al día. Inicialmente, estos electrodomésticos son más caros pero la amortización en poco tiempo, gracias al ahorro diario, está asegurada.

Los aparatos electrónicos también se deben vigilar. Hay algunos que aunque se apaguen, siguen funcionando ya que entran en modo reposo. Por ello, es recomendable instalar regletas y desconectar de la red eléctrica para asegurarnos que sí están realmente apagados. 

En lo relativo a la iluminación, aprovechar al máximo la luz natural y combinarla con luces LED en el momento necesario es lo ideal, ya que estas consumen hasta casi un 80 % menos de energía que las incandescentes.

Aerotermo

Reduce tu consumo de agua

En comparación con la electricidad o el gas, el agua no representa un gasto importante a final de mes. De hecho, en nuestro país el agua es más barata que la media europea, aunque también tenemos un riesgo mayor de sufrir estrés hídrico consecuencia de la emergencia climática. 

 

Cerrar el grifo y la ducha cuando no lo estamos utilizando o usar los programas eficientes de la lavadora, nos ayudará a reducir el consumo doméstico de agua, así como, poner de nuestra parte y cuidar el medio ambiente.

 

Otra cosa es como calentamos este agua, las resistencias de los calentadores es un consumo constante cada vez que abrimos el grifo de agua caliente. Una de las alternativas más utilizadas para la eficiencia energética en Murcia para este 2026 son los aerotermos. Sin entrar en detalles, funciona como la aerotermia pero compacto, es decir, consume menos. 

aerotermo

Instala un termostato programable

Controlar la temperatura de tu hogar para mantenerla constante ayuda a reducir el gasto en calefacción y aire acondicionado.

Destacar que la temperatura del hogar debe conservarse en torno a 20-21º C, siempre que haya alguien en casa. Cuando la casa esté vacía, la temperatura puede reducirse a 17-18ºC, lo mismo que durante la noche. 

Por ello, recalcamos la importancia de instalar el termostato que nos permitirá ajustar la temperatura del hogar en función de las necesidades y las rutinas diarias de los habitantes de la vivienda. 

Estas son solo algunas ideas para mejorar la eficiencia energética de tu hogar y reducir así, el consumo diario de energía doméstica. Si necesitas que estas ideas se materialicen, contacta con nosotros en un clic. En Arquitecto.eco somos expertos en  diseñar y ejecutar reformas, rehabilitación y obra nueva bajo criterios de sostenibilidad y primando la eficiencia energética en el largo plazo. 

6 ideas económicas para decorar tu terraza o jardín en Murcia

cine jardín 2

6 ideas económicas para decorar tu terraza o jardín en Murcia

Disfrutar de una vivienda con exteriores: una casa con jardín en Murcia o un piso con terraza o balcón es sin duda, uno de los mayores lujos que podemos tener en nuestro hogar. Pasar un rato agradable con la familia, amistades o un tiempo a solas siempre es mejor al aire libre y más cuando llega el verano. 

Tener un espacio exterior muchas veces no es suficiente… ¿Hay sitio para sentarse? ¿Es agradable a la vista? ¿Y cómodo? En cuántas ocasiones no hemos visto terrazas, balcones y jardines completamente desaprovechados por falta de mantenimiento y mimo. 

Puede suceder que el presupuesto disponible no haga realidad el espacio de nuestros sueños. Sin embargo hoy en día, tenemos a nuestra disposición infinidad de opciones de decoración low cost para tener un jardín o terraza de 10. Te traemos algunas ideas.

#1. Armarios, estanterías o bancos de almacén 

El espacio nunca sobra y de primera mano sabemos que lo que no cabe en casa, en algún lugar encuentra su sitio. Para este caso se puede colocar un armario o estantería en el jardín con doble función: almacenar y decorar. 

Debe estar hecho de un material que no se oxide y se limpie fácilmente, como el acero galvanizado o la madera. 

Cómodo, práctico y bonito. 

Si buscas algo más rústico y original, los bancos de almacén serán tu elección favorita ya que pueden guardar todo tipo de objetos y cambiarlo fácilmente de sitio (algunos tienen ruedas). Además, con un poco de ingenio puedes convertirlo en un cómodo sofá, tan solo basta con decorar con cojines y una funda. 

jardín en Murcia

#2. Una buena iluminación: clave para el ocio nocturno

Para iluminar las zonas del jardín, terraza o balcón de una forma que invite a compartir tiempo en él, es hacerlo con luces cálidas creando un ambiente acogedor. Las guirnaldas de luces, farolillos, focos pequeños e incluso velas son una opción low cost que nunca falla porque van con todo. 

No es necesaria una iluminación cargante, tan solo algunas luces estratégicas y coquetas bastarán para crear un espacio confortable en una noche de verano.

exterior decoracion
decoración exterior

#3. Pérgolas: buenas aliadas para un jardín en Murcia 

En jardines y terrazas tener una pérgola es sinónimo de sombra y comodidad. Existen multitud de diseños, colores, formas y materiales adaptables a vuestras necesidades (metálicas de hierro y aluminio, acero, madera, plegables, etc.).

La última novedad son las pérgolas bioclimáticas, donde se puede elegir la luz, ventilación o protección que pasa a través de ellas y muchas veces de forma automática. Aunque requieren de una mayor inversión, si estás pensando en poner una pérgola en tu jardín o terraza, debes tenerlas en cuenta.

Además de las pérgolas hay otras opciones que sombrean tu terraza, aquí compartimos algunas ideas.

#4. Un cine de verano 

¿Te imaginas tener tu propio cine en casa?

Actualmente gracias a la facilidad de las tiendas online tenemos proyectores de todos los tipos. Sin meternos en tecnicismos y calidad de imagen, hay aparatos muy económicos que junto a una sabana blanca de las que tengamos por casa, nos puede hacer las personas más felices del mundo. Puede ser un sitio versátil y servir para disfrutar de una comida, lectura o una buena charla. 

cine jardín 2
cine jardin murcia

#5. Mobiliario y decoración DIY 

Do It Yourself o hazlo tú mismo es una de las opciones más económicas a tener en cuenta para decorar nuestro jardín, terraza o balcón. Crear tus propios muebles y adornos con materiales reutilizados aporta un toque muy personal y original a nuestro espacio, además de ser la opción más ecológica.  

El ejemplo más habitual es el de utilizar palets de madera para construir mesas, sofás e incluso una tarima para practicar yoga, pero puedes ayudarte de muebles antiguos y restaurarlos.

jardín en Murcia

#6. Para que todo fluya: el agua 

Cualquier rincón de nuestro jardín o terraza puede albergar un elemento acuático siempre que el arquitecto/a sepa adaptarlo perfectamente a vuestros recursos y necesidades. En forma de piscina, fuente, estanque, lámina de agua o incluso un pequeño arroyo. 

El agua aporta dinamismo, sensibilidad y elegancia. Aunque el espacio sea limitado, un elemento de pequeñas dimensiones no requiere de una gran inversión y en cambio aportará un valor añadido incuestionable. 

En Arquitecto.eco podemos ayudarte a incluir algún elemento acuático en tu jardín. También a rehabilitar o reformar tu vivienda a golpe de clic.

Claves para calcular y reducir tu consumo energético​

consumo energetico

Claves para calcular y reducir tu consumo energético

El consumo energético es la cantidad de energía que gasta cualquier objeto que depende de una fuente para funcionar, pudiendo ser un dispositivo o incluso una vivienda. En este post te damos toda la información que necesitas para calcular y reducir tu consumo energético. 

consumo energetico

¿Qué es el consumo de energía?

En España, según ADEME, el 47% de la energía producida es consumida por los hogares en actividades domésticas: iluminación, calefacción, cocina, lavado, etc. 

La unidad de medida utilizada para comparar el consumo energético de una vivienda es el kw/m²/año. En el marco de la transición energética, se están adaptando los estándares actuales de consumo energético para conseguir que sean inferiores a 50kW por m² al año. Esto permitiría ahorrar energía y reducir el impacto ambiental en relación a las emisiones de CO2.

El gasto de energía también depende de otros factores. Por ejemplo, para una caldera, su consumo varía en función de su eficiencia y en una vivienda, el consumo de energía depende principalmente del aislamiento. En el post Casas eficientes: todo lo que debes saber sobre ellas ampliamos la información sobre el gasto energético de las viviendas. 

¿Cómo calcular tu consumo de energía?

ADEME ha implementado el método de cálculo 3CL, que se basa en un alojamiento y escenario estándares. Las características son:

  • Vivienda ocupada diariamente durante 16 horas entre semana y 24 horas los fines de semana.
  • Una ausencia de una semana durante el invierno (período de calefacción) y dos semanas en el verano (período de vacaciones).
  • Una temperatura de la casa de 19°C durante el día, luego 17°C por la noche en invierno (período de calefacción). Los calentadores y las ganancias solares se estiman en 18°C y 16°C. El otro aporte de calor representa 1°C.
  • Agua caliente sanitaria para consumo calculada a partir de la superficie habitable y la tasa de ocupación de la vivienda.

Para el cálculo rápido y sencillo de tu consumo energético, puedes utilizar calculadoras en línea. De esta forma obtendrás una aproximación del balance energético de tu hogar.

¿Cuál es el consumo energético mundial?

El consumo de energía varía de un país a otro según la situación socioeconómica y política. También se debe tener en cuenta que el consumo mundial de energía todavía está dominado por los combustibles fósiles, muy contaminantes en emisiones de gases de efecto invernadero.

¿A qué se debe este incremento desorbitado y generalizado? Principalmente al aumento de la población mundial y a la globalización. Por otro lado, existe una voluntad política de actuar contra el calentamiento global con la #COP26 de Glasgow, donde se buscan soluciones urgentes para hacer frente a la emergencia climática y donde las energías renovables ganan mucho protagonismo.

¿Cómo reducir tu consumo de energía?

La huella energética es una herramienta que permite evaluar la cantidad de energía necesaria para calentar una casa y el agua corriente. Esta evaluación se realiza por metro cuadrado de espacio habitable y se hace con un sistema de escalas que va de la A a la G, en orden ascendente de consumo, lo que significa que la huella energética G es lo más alto. 

Por lo tanto, en una vivienda cuanto mejor sea el aislamiento, mejor será la huella energética. En cuanto a los electrodomésticos, es importante fijarse en la etiqueta energética. En 2021, la gradación de este distintivo de los dispositivos cambiará. El + desaparece para dar paso a una etiqueta más clara, en particular gracias al código QR. 

¿Cuáles son los consejos para reducir el consumo de energía?

Todos los electrodomésticos y dispositivos que tenemos enchufados están consumiendo energía y si nos descuidamos, pueden hacerlo 24/7. Por ello, es muy importante fijarnos en ellos. A continuación, te compartimos una serie de consejos además de los trucos que te habíamos contado hace unos meses: 

  1. El frigorífico es el principal aparato que consume energía en los hogares. Elegir el tamaño correcto del frigorífico es clave. No compres uno enorme si sólo hay una persona que lo usa. El tamaño perfecto sería un dispositivo que se adapta a tus necesidades: de 250 a 350 L para un hogar de 3 a 4 personas y 100 a 150 L para una persona. Ajusta su temperatura a 4-5°C y a -18°C para el congelador. Presta atención  que esté alejado de fuentes de calor como radiadores o calefactores para que no haya compensación de temperatura. Si es reciente, utiliza el modo eco porque puede reducir su consumo de electricidad en un 25%.

  2. Un portátil consume entre un 50% y un 80% menos de energía que un ordenador de mesa. Si tu trabajo te lo permite, es mejor optar por un laptop y una pantalla con etiqueta verde.

  3. En cuanto a la televisión, uno LCD tiene menor gasto energético que un televisor de plasma.

  4. Una impresora de inyección de tinta requiere de 5 a 10W durante su funcionamiento, a diferencia de una impresora láser que requiere de 200W a 300W para funcionar.

  5. Controla la iluminación de tu casa. La intensidad ideal para la cocina, baño y salas de estar es de 15 a 20W por m² y de 10 a 15W para pasillos, salas de paso y dormitorios.

  6. Coloca tus muebles de forma inteligente para que puedas aprovechar al máximo la luz natural.

  7. Amén a un buen aislamiento. Para controlar el consumo energético en tu vivienda revisa el aislamiento de los cierres de ventanas y puertas. Cuando evitas que se escape el calor, se mejora el rendimiento energético y se evita despilfarrar energía. Además, te recomendamos:

  • Rehacer sellos de ventana
  • Agregar cortinas
  • Cerrar las contraventanas por la noche
  • Aislar una puerta de garaje, si es necesario

Conclusiones

Reducir el consumo energético es un tema glocal (global + local) y es fundamental actuar a favor de la protección del medio ambiente. Además, reducir tu consumo de energía reduce tu factura de luz de forma directa. Si te interesa ampliar la información, te dejamos un artículo sobre los mejores sistemas de calefacción para este invierno.

También te puede interesar:

Las 5 ventajas de vivir a las afueras de la ciudad o en pueblos grandes

vivir a las afueras

Las 5 ventajas de vivir a las afueras de la ciudad o en pueblos

El precio de la vivienda en las ciudades ha aumentado de forma significativa en los últimos años, lo que ha llevado a muchas personas a buscar alternativas más asequibles en las afueras o en pueblos de alrededor. 

Las ciudades más grandes como Madrid, Barcelona, Valencia e incluso otras más pequeñas como Alicante y Murcia han elevado tanto el precio de la vivienda que el vivir en el centro de la ciudad se ha convertido en un auténtico lujo. Factores como la alta demanda, la falta de suelo disponible, la turistificación, la gentrificación y los costes de construcción han contribuido a esta tendencia. 

En este artículo, exploraremos las ventajas de vivir en las afueras de la ciudad, especialmente en la Región de Murcia y la Provincia de Alicante.

vivir a las afueras

¿Por qué es tan caro vivir en los centros de las ciudades?

La demanda de vivienda en las grandes ciudades ha crecido de manera constante debido a la migración de personas que buscan nuevas y mejores oportunidades laborales y educativas. La oferta, sin embargo, no ha crecido al mismo ritmo, creando un desequilibrio que aumenta los precios. 

Esto, en gran medida, es causa de las regulaciones urbanísticas y la escasez de suelo disponible para nuevas construcciones en las grandes ciudades, lo que aumenta los precios de las viviendas existentes.

Las grandes ciudades han invertido significativamente en infraestructura, servicios y comodidades, lo que hace que vivir en estas áreas sea más atractivo y se incremente el valor de las propiedades.

Por otro lado, la especulación inmobiliaria está a la orden del día. La inversión en bienes raíces como un activo financiero seguro ha llevado a la compra y venta de propiedades con fines de lucro, sumado al creciente auge de alquileres turísticos y la renovación de zonas obreras en zonas chic eleva de forma exponencial los precios.

El aumento en los costes de construcción debido a materiales y mano de obra también ha contribuido a los precios más altos de las viviendas.

Así, la población local cada vez se ve más desplazada y en muchas ocasiones obligada a mudarse a otro lugar. 

Hace un tiempo te hablé sobre las ventajas de vivir en un pueblo. Estoy seguro de que no es necesario que te las recuerde: aire puro, tranquilidad, precios más bajos… Pero también tiene algunas desventajas que quizás estén retrasando tu cambio de estilo de vida.

Entre vivir en un lugar con unas pocas casas, o en el campo y una gran ciudad existe un abanico de posibilidades que tal vez no conozcas.

Por eso hoy quiero hablarte de una alternativa: vivir a las afueras de la ciudad o en un pueblo. ¿Te interesa descubrir si es para ti? Pues te invito a que sigas leyendo.

Ventajas de vivir en las afueras de una ciudad o en un pueblo

Para este post vamos a contemplar la escala de habitantes de pueblos pequeños entre 3.000 y 10.000 como por ejemplo Catral, Cox, Bigastro, Corvera, Ceutí, Ricote, Blanca o Moratalla o ciudades pequeñas como pueden ser Alcantarilla, Molina de Segura, Fortuna, Archena, Los Alcázares, Orihuela, Crevillent o El Campello. Reformar o rehabilitar una vivienda a las afueras de la ciudad o en pueblos grandes puede suponer muchas ventajas para ti. A continuación te cuento algunas de ellas.

Viviendas más baratas y mejor calidad de vida

Vivir en las afueras ofrece una clara ventaja económica. Los precios de las viviendas en estas áreas son bastante más bajos en comparación con los del centro de la ciudad. 

Por ejemplo, el precio medio del metro cuadrado en Alicante en 2010 era de 1.022 €/m², mientras que en junio de 2024 ha incrementado a 3.030 €/m². ¡Casi el triple de lo que valía hace menos de 15 años!

Las afueras ofrecen un entorno más tranquilo y menos congestionado. Las viviendas suelen ser más grandes y están rodeadas de áreas verdes, lo que mejora la calidad de vida. Menos ruido y contaminación contribuyen a un ambiente más saludable y relajante.

Excelente conexión a internet

Lo primero que debes pensar cuando decides rehabilitar o reformar un piso o casa es si se ajusta a tus necesidades y a tu día a día. Es cierto que, con internet, en principio no tiene por qué faltarte nada en un pueblo. ¿Pero qué pasa si es precisamente la conexión la que falla?

En pueblos grandes y las afueras de ciudad acostumbra a llegar una mayor cantidad de datos gracias a la fibra óptica que ya está llegando incluso a las aldeas. Este punto es especialmente importante y puede suponer un problema para ti si trabajas en casa o si eres una persona aficionada a ver contenido en streaming. Además, con el avance de la conexión a Internet por satélite, podemos tener una conexión de muy buena calidad hasta en alta mar.

Tienes todos los servicios cerca

Las mejoras en el transporte público y las carreteras han hecho que vivir en las afueras sea una opción viable. Las conexiones rápidas y eficientes permiten a los habitantes desplazarse fácilmente a la ciudad para trabajar o disfrutar de todos sus servicios. Además, estas zonas cuentan con todos los servicios esenciales como escuelas, centros de salud y comercios y Amazon podrá traer a la puerta de tu casa todo lo que pidas.

Si vives en las afueras o en un pueblo grande, no necesitarás el coche para ir al gimnasio, ir al supermercado, al centro de salud o a tomar algo con tus amigos. Puedes desplazarte en bus, bici o incluso a pie. Otra ventaja es que es posible que el servicio a domicilio de los restaurantes llegue hasta tu puerta. Al vivir en un pueblo muy pequeño, es probable que necesites el coche de vez en cuando.

De nuevo, aquí entran en juego tus prioridades. Valora si es para ti una prioridad tener los servicios cerca o si no te importa desplazarte.

Menos contaminación

Es indiscutible que el aire es mucho más puro en un pueblo. Por lo tanto, en las afueras de la ciudad o una villa habrá más tráfico y, por tanto, más contaminación. Sin embargo, te animo a que busques una zona más verde y que no tenga una carretera principal justo enfrente. De esta forma, podrás disfrutar de todas las ventajas de vivir cerca de una ciudad o en un pueblo grande sin renunciar a la naturaleza y al aire puro.

Variedad de ocio

En un pueblo muy pequeño es posible que no tengas ni bar o que tengas solo uno, por lo que no tendrás ni que pedir cuando entras por la puerta (ya sabrán lo que quieres). En un pueblo grande, habrá locales de distintos tipos y clientela. Además de eso, es muy probable que no te cueste nada conseguir un sitio en una terraza o conseguir una mesa para comer. Puede parecer una tontería, pero en una gran ciudad puede convertirse en misión imposible.

Una oportunidad de inversión y desarrollo

Las áreas suburbanas están viendo un aumento en el desarrollo y la inversión. Esto se traduce en una potencial revalorización de las propiedades, haciendo que la compra de una vivienda en las afueras sea una inversión inteligente. Además, muchos gobiernos están fomentando el crecimiento de estas zonas.

Impuestos más baratos que en una gran ciudad pero un poco más elevado que en una aldea

Pero si tienes en cuenta los puntos anteriores, como los desplazamientos o la comodidad de estar cerca de los sitios a los que vas a diario, es probable que a largo plazo sea lo que te convenga. Infórmate sobre los impuestos del lugar en el que te gustaría vivir tanto para reformas como para construir una vivienda y así podrás hacerte una idea de la diferencia.Te dejo por aquí más información por si te apetece saber más sobre cuánto cuesta construir una casa.

vivir a las afueras

No todo son ventajas al reformar o rehabilitar para vivir a las afueras de las ciudades

Uno de los mayores contras es el ruido del tráfico

En un pueblo grande el flujo de vehículos es muy superior al que hay en pueblos pequeños. Como te comentaba un poco más arriba, si buscas una zona más tranquila sin mucho tráfico y con zonas verdes es posible que no esté en el centro. Créeme cuando te digo que ganarás en calidad de vida al mismo tiempo que ahorras dinero con respecto a si la propiedad estuviese situada en pleno centro.

Por lo general, en un pueblo pequeño tendrás más espacio para construir o reformar por menos precio

Otro punto a tener en cuenta es el espacio que necesites. Si tienes una familia grande o necesitas mucha amplitud por el motivo que sea, tal vez encuentres más y mejores opciones en un pueblo.

Vivir en las afueras de la ciudad presenta numerosas ventajas, desde el ahorro económico hasta una mejor calidad de vida. Con la mejora de la infraestructura y las oportunidades de inversión, las afueras se presentan como una opción atractiva y viable para quienes buscan una alternativa al alto coste de la vida en las ciudades. Considerar mudarse a las afueras puede ser una decisión beneficiosa tanto a corto como a largo plazo.

¿Quieres mudarte pero aún no sabes qué opción se adapta mejor a ti? Veamos juntos qué alternativas puedes tener en las afueras de tu ciudad o en un pueblo grande cercano. ¡Cuéntanos tu caso!